AGNES ODRY EBY Négociatrice
Télécharger la fiche
Accord

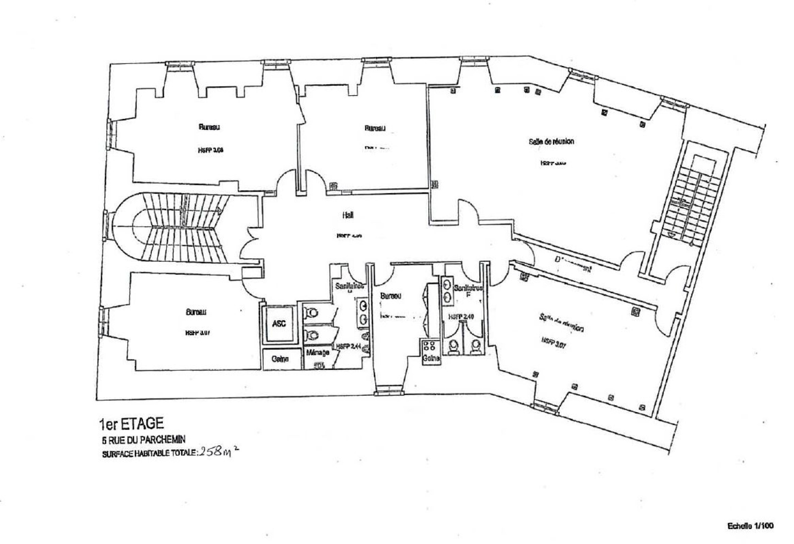
Bureaux 258 m²

Strasbourg (67000)
3 548 € / mois NAT * NAT : Non assujetti à TVA Référence LOC-028B

A propos de ce bien


Les informations sur les risques auxquels ce bien est exposé sont disponibles sur le site Géorisques

Caractéristiques de ce bien

Activités

  • Type de transaction Bureaux

Agencement

  • Superficie m2 258 m²
  • Ascenseur 1
  • Vue Cathédrale

Equipements

  • Chauffage collectif : radiateur (gaz)

Secteur

  • Code postal 67000
  • Ville Strasbourg
  • Quartier CENTRE

Diagnostics & compléments

  • Année de construction 1850
  • Risques natures et techniques OUI

Composition du bien

Etage 1

  • accueil 33.64 m²
  • bureau 26.32 m²
  • bureau 34.54 m²
  • bureau 27.57 m²
  • bureau 40.36 m²
  • salle 69.95 m²
  • WC 7.41 m²
  • WC 11.07 m²
  • Couloir 7.97 m²

Diagnostics énergétiques

Consommation énergétique
A B C D E F G
Emission de gaz à effet de serre
A B C D E F G
DPE en cours

Informations financières

Loyer 3 548 € / mois
Honoraires charge locataire 6 386 €
Dont état des lieux 360 €
Dépot de garantie 7 095 €
Charges locatives (provision donnant lieu à régularisation annuelle) 1 130 €
Taxe foncière annuelle 2 750 €
Bail professionnel
Echéance du bail 2025-12-12