Agnès Odry Immobilier Agence
Télécharger la fiche
Accord

Bureaux 7 pièce(s) 273 m²

Strasbourg (67000)
3 754 € / mois TTC - HC* * Hors charges * TTC : Toutes Taxes Comprises Référence LOC-029

A propos de ce bien

Bureaux tertiaires à louer à Strasbourg hyper-centre.

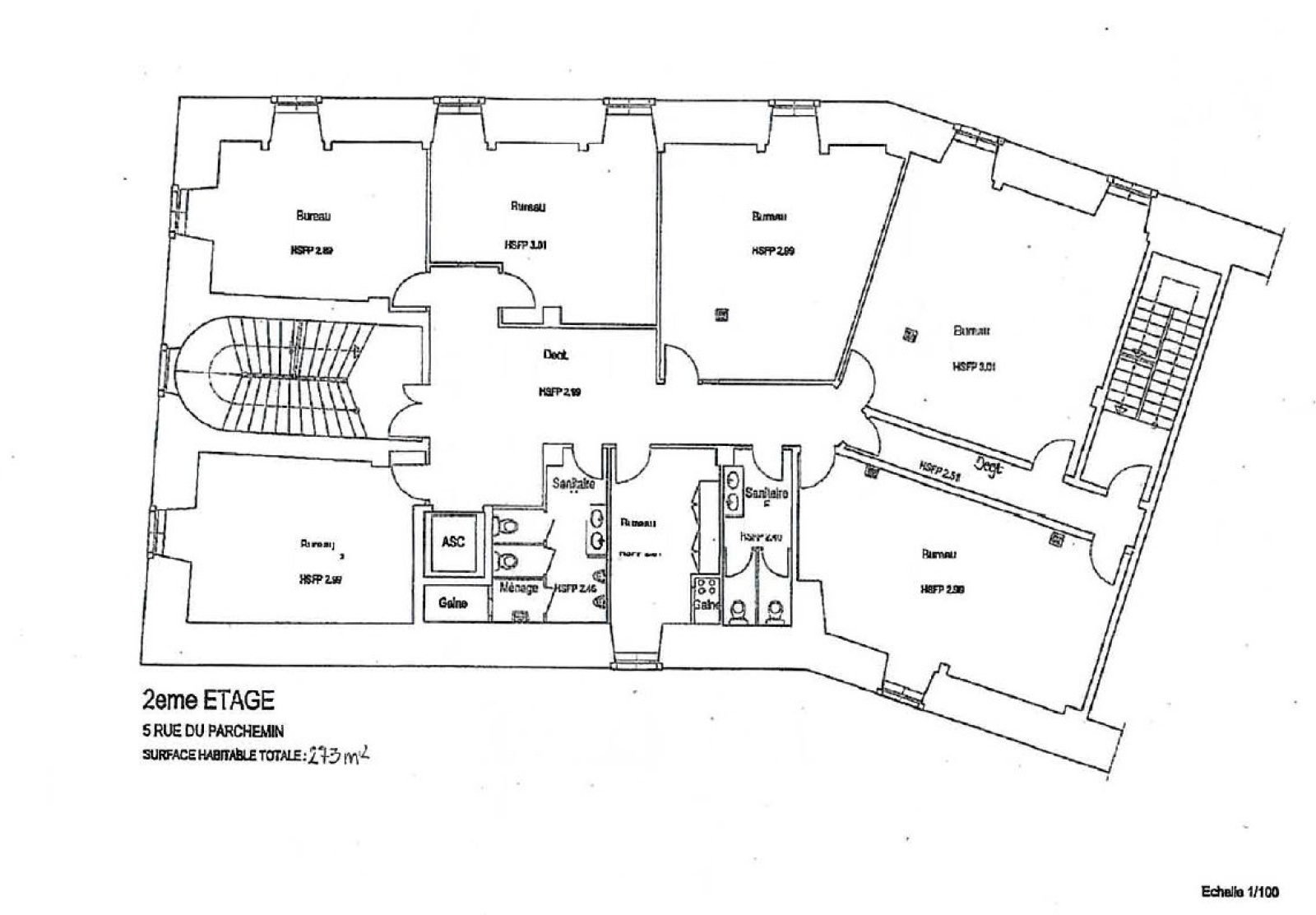
2 plateaus de spacieux bureaux, au premier étage - 258 m² et au deuxième étage - 273 m² dans un bel immeuble situé 5 rue du parchemin à Strasbourg.

Locaux en bon état (sol, mur, plafonds).

Ascenseur, WC hommes, WC femmes, normes de sécurité, hors normes PMR.


Les informations sur les risques auxquels ce bien est exposé sont disponibles sur le site Géorisques

Caractéristiques de ce bien

Activités

  • Type de transaction Bureaux

Agencement

  • Superficie m2 273 m²
  • Etage 2ème
  • Ascenseur 1
  • Vue Cathédrale
  • Exposition Sud-Ouest
  • Nombre de pièces 7

Equipements

  • Chauffage collectif : radiateur (gaz de ville)

Secteur

  • Code postal 67000
  • Ville Strasbourg
  • Quartier CENTRE

Agencement extérieur

  • Nombre d'étage 3

Diagnostics & compléments

  • Année de construction 1800
  • Risques natures et techniques OUI

Composition du bien

Etage 1

  • accueil
  • WC
  • WC

Diagnostics énergétiques

Consommation énergétique
A B C D E F G
Emission de gaz à effet de serre
A B C D E F G
DPE en cours

Informations financières

Loyer TTC 3 754 € / mois
Honoraires TTC charge locataire 6 757 €
Dont état des lieux 360 €
Dépot de garantie 7 508 €
Charges locatives TTC (provision donnant lieu à régularisation annuelle) 1 130 €
Bail professionnel